宁夏又一二手车综合交易市场初现规模!
扫描到手机,新闻随时看
扫一扫,用手机看文章
更加方便分享给朋友
如今汽车已经成为了人们出行的主要代步工具,而说到银川4S店的集中区域,大家首先想到的肯定是贺兰德胜、贺兰园艺路和金凤工业园区,但随着人均收入的提高,以及城市版图的拓展,这三处集中区域已经不能满足整座城市的购车、售后需求了。
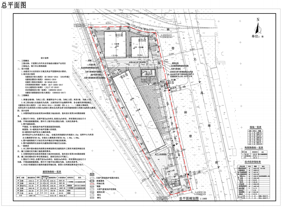
昨天,银川市自然资源局公示了宁夏聚力升汽车后市场综合服务产业项目的规划图,咱们西夏区也要有自己的汽车后市场综合服务产业啦。
项目概况:
宁夏聚力升汽车后市场综合服务产业项目位于西夏区南绕城南侧、文昌街西侧,公铁物流园区内。

规划总用地面积44423. 09平方米,总建筑面积16609. 01平方米,其中地上15121. 49平方米,地下1487.52平方米,计容建筑面积28442.98平方米,容积率0. 64,建筑密度31.73%,绿地率20.70%,地上机动车停车位43个,其中大车停车位27个,小车停车位16个。


建设内容:
该项目规划拟建地上6栋建筑、地下人防及消防水池,其中新建3栋一层高14.45米的仓储,1栋三层高12.5米的运转中心, 1栋一层高3.8米的库房、1栋一层高4.2米的门房。

如今再加上宁夏聚力升汽车后市场综合服务产业项目的建设,不仅产业链条更加完善,选择种类多样,后期服务保障也越加全面。
西夏区作为银川的主城区,一直以来发展脚步都要略逊于其它两区,不过随着兴庆区和金凤区的城市定位逐渐明朗,一些重磅城市规划也开始向西夏区倾斜,如近几年备受瞩目的冰雪文旅小镇和教育小镇,颇有些厚积薄发的气势。
其实如果想知道一个区域到底升值潜力如何,看看该区域落户的房企项目便可猜出一二,现在西夏区在售的楼盘项目,如:宁夏中房西悦府、阅海天山熙湖、金泽苑等,本地实力房企做背书,皆是质量与口碑并存的新星楼盘。
现在楼市正处于复苏状态,加之整体基调仍处于“维稳”状态,正是上车的好时机,有购房需求的小伙伴,不妨好好考虑一下。
声明:本文由入驻焦点开放平台的作者撰写,除焦点官方账号外,观点仅代表作者本人,不代表焦点立场。


