123.58亩!贺兰县重磅项目规划公示!
扫描到手机,新闻随时看
扫一扫,用手机看文章
更加方便分享给朋友
12月7日,贺兰县自然资源局发布了“贺兰县习岗镇乡村振兴特色农旅科技产业融合发展示范园建设项目规划方案公示”的信息。

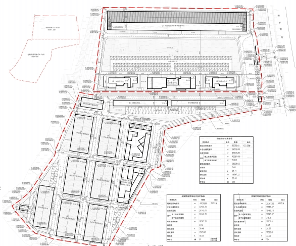
根据公示内容显示,贺兰县习岗镇乡村振兴特色农旅科技产业融合发展示范园项目位于宁夏贺兰县习岗镇,和平南街以西,南至农田,西至农田,北至农田,规划总用地面积82386.01平方米(123.58亩),商服用地规划新建5栋建筑,仓储物流用地规划新建14栋建筑。
1.项目概况:
贺兰县习岗镇乡村振兴特色农旅科技产业融合发展示范园建设项目位于宁夏贺兰县习岗镇,和平南街以西,南至农田,西至农田,北至农田,规划总用地面积82386.01平方米(123.58亩),总建筑面积43605.89平方米,其中地上43287.08平方米,地下318.81平方米(地下一层消防水池及泵房),容积率0.68,建筑密度34.71%,绿地率22.33%,停车位255个。

其中商服用地面积35367.12平方米(53.05亩),总建筑面积19465.18平方米,地上19146.37平方米,地下318.81平方米(地下消防水池及泵房),容积率0.54,建筑密度28.37%,绿地率32.02%,停车位194个。
仓储物流用地面积47018.89平方米(70.53亩),总建筑面积24140.71平方米,容积率0.79,建筑密度39.49%,绿地率15.04%,停车位61个。

2.建设内容:
商服用地规划新建5栋建筑,其中1栋3层、高11.70米的综合服务中心,2栋2层、高8.1米的综合办公楼,1栋2层高12.40米的国际鸽联洲际赛事服务中心,1栋1层高4.50米的门房;仓储物流用地规划新建14栋建筑,其中3栋1层、高4.50米的辅助用房,2栋2层、高12.0米的装配式集装箱立体农业科技种植示范区,7栋1层、高8.20米的仓储冷链物流区,1栋1层、高8.20米的原料转运车间,1栋1层、高4.50米的门房。






3.建设单位:宁夏农旅科技有限公司
4.设计单位:中叙设计集团有限公司
5.项目地址:位于宁夏贺兰习岗镇,东至和平南街,南至农田,西至农田,北至农田
6.公示单位:贺兰县自然资源局
7.联系电话:0951-8081335
8.公示日期:2023年12月7日—2023年12月15日(公示期7个工作日)
如对此规划方案有异议,请于7个工作日内向我局提出听证申请。
声明:本文由入驻焦点开放平台的作者撰写,除焦点官方账号外,观点仅代表作者本人,不代表焦点立场。


