真棒!银川三大住宅项目获得最新批后公示!
扫描到手机,新闻随时看
扫一扫,用手机看文章
更加方便分享给朋友
8月28日,银川市自然资源局最新公示了盛世西城,盛世学府,央御小区三大项目的规划及建筑设计方案批后信息。
具体信息如下:
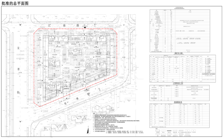
盛世西城项目

该规划建筑设计方案已按程序批准,现按照《中华人民共和国城乡规划法》等相关法律法规要求进行批后公布。欢迎社会各界监督。监督电话:0951-5556312,5556071
项目名称:盛世西城项目
建设单位:宁夏建设投资集团房地产开发有限公司
项目地址:西夏区文萃街以东、育林巷以北。
建设内容:该项目拟建11栋楼,3栋26层住宅,4栋18层住宅,3栋1层商业用房,1栋3层商业及配套用房。


(图中建筑名称:聚焦二次编辑标注)

盛世西城是宁夏建投在西夏区正待开发建设的新项目,项目位置优越,周边配套成熟,有远近闻名的怀远夜市,银川新建中医院以及中医院研究院,银川八小,银川二十四中等各大高质量资源环伺其左右。
待项目开售,将是西夏区新盘极具竞争力的产品。
盛世学府项目

该规划建筑设计方案已按程序批准,现按照《中华人民共和国城乡规划法)等相关法律法规要求进行批后公示。欢迎社会各界监督。监督电话:0951-5556312 5556071
项目名称:盛世学府项目
建设单位:宁夏建投置业有限公司
项目地址:西夏区金波北街以东、规划纬二路以南
建设内容:该项目拟建12栋楼,其中4栋18层住宅,1栋16层住宅,2栋15层住宅, 2栋9层住宅,1栋8层住宅,1栋3层配套用房,1栋2层商业用房。物业用房338平方米,养老服务设施用房300平方米,公共厕所80平方米,社区工作用房及居民活动用房184平方米。



当前盛世学府已经入市在销。项目主打 115-143㎡的刚需和改善产品,区域位置上具备众多发展潜力,未来随着教育小镇板块的再成熟,项目居住氛围会更浓。
在此,不得不提的便是项目周边的教育资源,近距离有 教育小镇幼儿园、小学、中学,毗邻第一幼儿园(西夏园)、银川第二十一小(文萃小学)、银川一中(西夏校区)等各大学校资源。
央御小区项目

该规划建筑设计方案已按程序批准,现按照《中华人民共和国城乡规划法》等相关法律法规要求进行批后公布。欢迎社会各界监督。监督电话:0951-5556312,5556071
项目名称:央御小区项目
建设单位:宁夏中恒诚置业有限公司
项目地址:兴庆区丽景北街西侧,春光巷南侧
建设内容:拟建30栋楼,其中11栋18层、5栋11层、1栋10层、2栋9层、4栋8层、1栋11拼8层、1栋7层住宅、3栋沿街商铺、1栋配套、1栋12班幼儿园。



中恒央御项目是今年城东新开发的红盘项目之一。于近日,正式迎来了首开,项目热度也一度直线上升。
据了解,该项目主要打造118-143㎡的三居、四居户型,以中高端改善为主,园林景观打造,户型设计都独具亮点。而项目地处老北环批发厂,区位条件形成了天然优势,也造就了周边醇熟一体的完整配套链,是城东居住即成熟的楼盘。
声明:本文由入驻焦点开放平台的作者撰写,除焦点官方账号外,观点仅代表作者本人,不代表焦点立场。


