热点!城北又将新建两所学校!项目规划方案正在公示……
扫描到手机,新闻随时看
扫一扫,用手机看文章
更加方便分享给朋友
千呼万唤始出来,之前被期待的第四十二中和阅海第五小学终于迎来了规划公示。我们先一起来看看两个学校的规划:
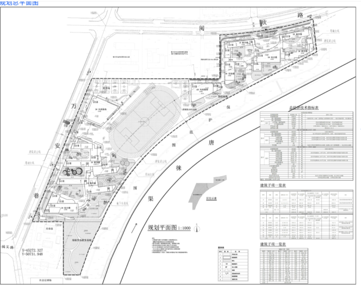
项目概况:

银川市第四十二中学与银川市阅海第五小学工程项目位于金凤区万安巷以东、阅欣路以南、唐徕渠以西。规划总用地面积85080.05平方米,总建筑面积59818平方米,其中地上47018平方米,地下12800平方米(机动车库、人防工程),容积率0.55,绿地率35%,建筑密度19.54%,地下机动车停车位304个(其中学校停车位184个,社会停车位120个),非机动车停车位1677个。

建设内容:
规划建设银川市第四十二中学与银川市阅海第五小学两部分,其中银川市第四十二中学建设3栋3层(局部2层)高12.5米的教学楼,1栋4层(局部2层)高16.4米的实验楼,1栋4层(局部2层)高17.9米的综合楼,1栋3层(局部2、1层)高15.8米的风雨操场,1栋1层高3.75米的门房。

银川市阅海第五小学建设1栋3层(局部2层)的教学楼,1栋5层(局部3、1层)的综合楼,1栋3层高14.7米的风雨操场,1栋1层高4.05米的门房,和地下一层的地下车库。

未来,当两所学校建成之后,不仅能长远解决教育资源分配问题,区域价值也得到显而易见的提升。
同时,也将直接利好城北大阅城板块的居民,家长每日接送孩子上学放学的过程,将不再是单调的两点一线。比如放学后,可以一起去建发大阅城逛逛自己想买的东西,或者在活动区玩上一两个小时,让孩子去尽情的撒野。
在这附近住的家长们,再也不用担心孩子的上学问题啦!
建设单位:银川市教育局
设计单位:银川市规划建筑设计研究院有限公司
项目地址:金凤区万安巷以东、阅欣路以南、唐徕渠以西
公示单位:银川市自然资源局
声明:本文由入驻焦点开放平台的作者撰写,除焦点官方账号外,观点仅代表作者本人,不代表焦点立场。


