有变动!城南这一项目最新动态曝光......
扫描到手机,新闻随时看
扫一扫,用手机看文章
更加方便分享给朋友
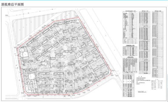
近日,银川市自然资源局公示了高桥保障性住房规划变更方案。
项目概况:
项目位于金凤区六盘山路南侧,丽银街东侧。原批规划用地面积207021.62平方米,总建筑面积416100.8平方米,其中地上331110.62平方米、地下84990.18平方米,容积率1.60,建筑密度17.20%,绿地率45.21%,机动车停车位2605个,其中地上895个、地下1710个。


拟变更原因及内容:

2018年对项目用地范围进行调整,项目用地面积由207021.62平方米调整至168696.70平方米,现建设单位申请按照新核发不动产权登记证宗地范围,调整规划设计方案,具体内容如下:
1、因用地面积调整,取消C区全部建筑,B区B-5楼、F区F-6、F-7、F-8楼;
2、因取消部分建筑设计,原批各类配套设施位置及面积进行调整,具体如下:

(1)原批F-6楼300平方米的卫生站调整至G-7酒店一层,面积仍为300平方米;
(2)原批F-6楼350平方米老年活动中心调整至G-8楼商业1至2层,名称变更为养老服务设施,建筑面积885平方米;
(3)原批F-6楼500平方米社区服务中心调整至G-8楼商业2至4层,名称变更为社区工作用房和居民活动用房,建筑面积880平方米;
(4)原批F-6楼400平方米文化活动站调整至G-8楼商业4层,面积仍为400平方米;
(5)原批物业管理用房共932平方米,其中位于F-6楼750平方米,G-6楼商业182平方米,现将F-6楼750平方米物业管理用房现调整至G-6楼商业1至2层,物业管理用房面积仍为932平方米。
调整后,规划用地面积168696.70平方米,总建筑面积338983.84平方米,其中,地上278336.80平方米、地下60647.04平方米,容积率1.65,建筑密度17.61%,绿地率47.19%,机动车停车位1862个,其中地上718个、地下1144个。
声明:本文由入驻焦点开放平台的作者撰写,除焦点官方账号外,观点仅代表作者本人,不代表焦点立场。


